Contractor Village

Commercial & Industrial Park

Details for Unit: #707

Unit #707:

Location: Building: T

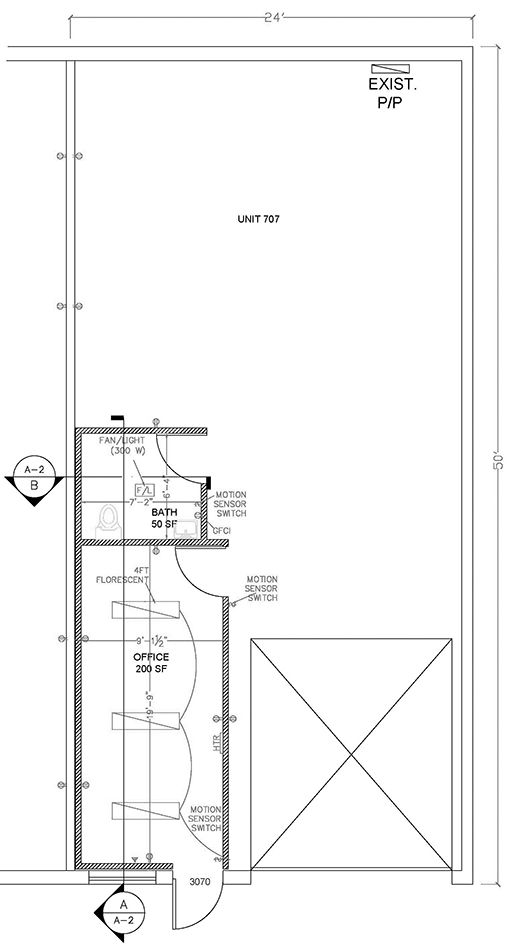
Width: 24'

Depth: 50'

Total Size: 1,200 S.F.

Unit Available For Leasing

This unit is available to be leased or viewed at this time.

Give our leasing contact a call to ask questions or set up a unit tour at: (360) 619-2977.

Limited-Time Offer!

$$$ New LEASE Promotion: 

Sign a new Lease NOW (before the expiration date of this promotions) for a 1-Year Lease and Get FIRST Month FREE Rent.

(Ask for details)

Promotion Valid From: February 11th, 2026 - March 31st, 2026
Reference: NWTN02110331

Call (360) 619-2977 or Contact Us to get started!

Some restrictions may apply, call for more information.

Floorplan for Unit #707

Floorplan for Unit #707
Click to Enlarge Floorplan.

Rental Price

Space Dimensions Restroom Included? Office Included? Cost + NNN
24' Wide x 50' Deep Yes Yes $1,800.00 / Month + $150.00 NNN

Unit Details and Description

Unit #707 in Building T at Contractor Village is available for lease on or after December 8th, 2025 for a monthly cost of $1,950.00 which includes the NNN cost as described above.

Unit #707 in Contractor Village is very close to SR-500, I-205, and PDX to make travel to and from the location easy

Tours and visits can be arranged to view the unit before you apply, feel free to call us at (360) 619-2977.

Looking for More Information?

If you are looking for more information, a more detailed floor-plan, circuitry configurations, or combination-unit options please call our Leasing Contact to discuss your informational request at (360) 619-2977 or visit our Contact Us page.

Other Delta Management Company Warehouse Properties You May Be Interested In

Airport Industrial Warehouses
Airport Industrial Warehouses
207 E. Reserve St., Vancouver
53 Total Units - Check Availability
Contractor Depot
Contractor Depot
12308 N.E. 56th St., Vancouver
49 Total Units - Check Availability
Park Warehouses
Park Warehouses
1770 NE 65th Ave., Vancouver
10 Total Units - Check Availability
U-Rent Warehouses
U-Rent Warehouses
5951 E. 18th St., Vancouver
14 Total Units - Check Availability