Contractor Village

Commercial & Industrial Park

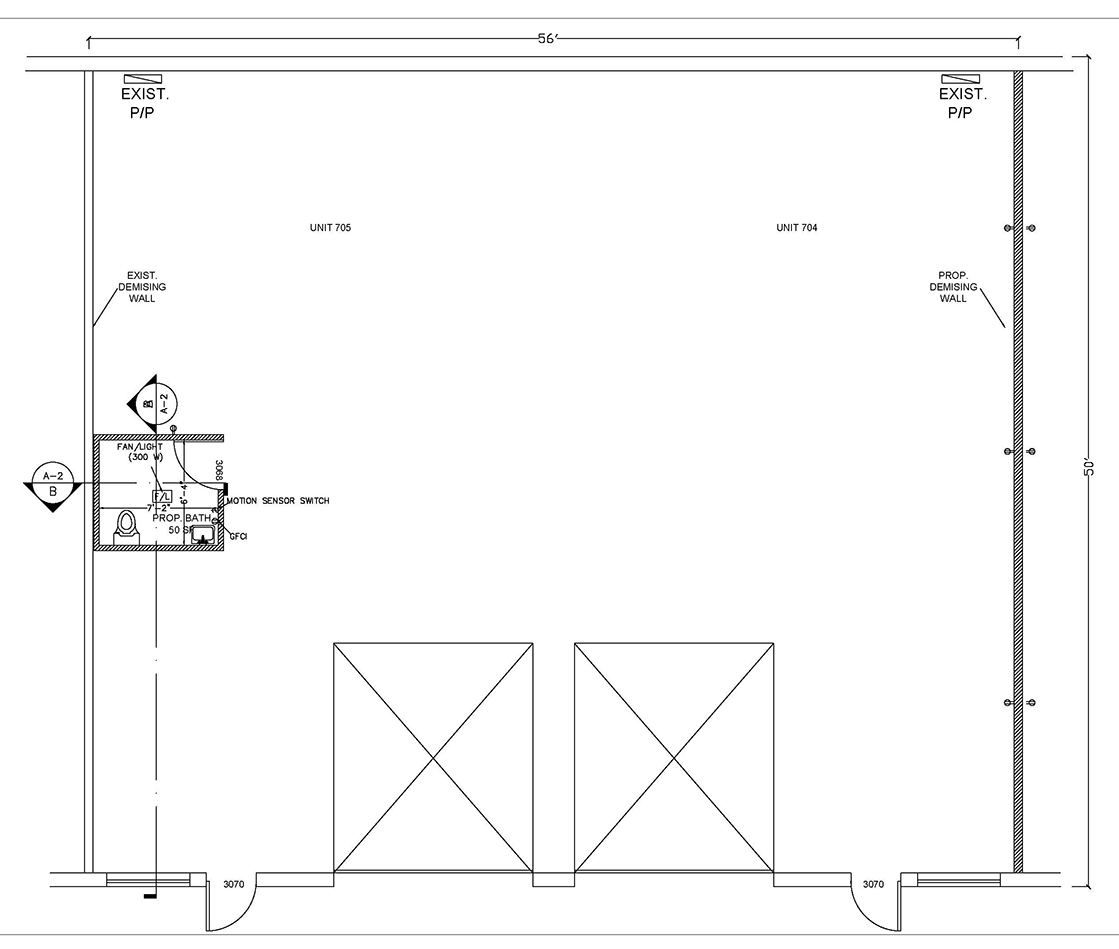
Details for Combination Unit: CV 704 & 705

CV 704 & 705:

Location: Building: S

Total Width: 56'

Total Depth: 50'

Total Size: 2,800 S.F.

Unit Currently Unavailable

We may have other units that are available that meet your needs. Check out our other Delta Management Company properties with the links at the bottom of the page.

You can also give our leasing contact a call with any questions on our unit availability at: (360) 619-2977.

Floorplan for Comination Unit

Floorplan for Combination Unit CV 704 & 705
Click to Enlarge Floorplan.

Rental Price for Combination Unit

Unit # Space Dimensions Restroom in this Unit? Office in this Unit? Square Feet
#704 28'W x 50'D No No 1400 Square Feet
#705 28'W x 50'D Yes No 1400 Square Feet
Total Square Feet: 2,800 S.F. Total Combination Rental Price: $3,140.00 / Month + $300.00 NNN

Combination Unit Details and Description

Combination Unit CV 704 & 705 in Building S at Contractor Village is available for lease on or after April 4th, 2023 for a monthly cost of $3,440.00 which includes the NNN cost as described above.

Combination unit CV 704 & 705 in Contractor Village is very close to SR-500, I-205, and PDX to make travel to and from the location easy

Tours and visits can be arranged to view the unit before you apply, feel free to call us at (360) 619-2977.

Looking for More Information?

If you are looking for more information, a more detailed floor-plan, circuitry configurations, or combination-unit options please call our Leasing Contact to discuss your informational request at (360) 619-2977 or visit our Contact Us page.

Other Delta Management Company Warehouse Properties You May Be Interested In

Airport Industrial Warehouses
Airport Industrial Warehouses
207 E. Reserve St., Vancouver
53 Total Units - Check Availability
Contractor Depot
Contractor Depot
12308 N.E. 56th St., Vancouver
49 Total Units - Check Availability
Park Warehouses
Park Warehouses
1770 NE 65th Ave., Vancouver
10 Total Units - Check Availability
U-Rent Warehouses
U-Rent Warehouses
5951 E. 18th St., Vancouver
14 Total Units - Check Availability