Contractor Village

Commercial & Industrial Park

Details for Unit: #412

Unit #412:

Location: Building: M

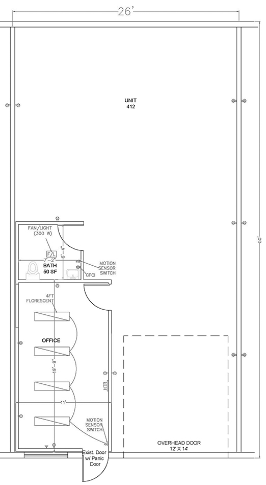
Width: 26'

Depth: 50'

Total Size: 1,300 S.F.

Unit Will Become Available On:

This unit will be available to be leased after: 2026-03-04

Give our leasing contact a call with any questions on our warehouse unit availability at: (360) 619-2977.

Limited-Time Offer!

$$$ New LEASE Promotion: 

Sign a new Lease NOW (before the expiration date of this promotions) for a 1-Year Lease and Get FIRST Month FREE Rent.

(Ask for details)

Promotion Valid From: February 11th, 2026 - March 31st, 2026
Reference: NWTN02110331

Call (360) 619-2977 or Contact Us to get started!

Some restrictions may apply, call for more information.

Floorplan for Unit #412

Floorplan for Unit #412
Click to Enlarge Floorplan.

Rental Price

Space Dimensions Restroom Included? Office Included? Cost + NNN
26' Wide x 50' Deep Yes Yes $1,950.00 / Month + $150.00 NNN

Unit Details and Description

Unit #412 in Building M at Contractor Village is available for lease on or after March 4th, 2026 for a monthly cost of $2,100.00 which includes the NNN cost as described above.

Unit #412 in Contractor Village is very close to SR-500, I-205, and PDX to make travel to and from the location easy

Tours and visits can be arranged to view the unit before you apply, feel free to call us at (360) 619-2977.

Looking for More Information?

If you are looking for more information, a more detailed floor-plan, circuitry configurations, or combination-unit options please call our Leasing Contact to discuss your informational request at (360) 619-2977 or visit our Contact Us page.

Other Delta Management Company Warehouse Properties You May Be Interested In

Airport Industrial Warehouses
Airport Industrial Warehouses
207 E. Reserve St., Vancouver
53 Total Units - Check Availability
Contractor Depot
Contractor Depot
12308 N.E. 56th St., Vancouver
49 Total Units - Check Availability
Park Warehouses
Park Warehouses
1770 NE 65th Ave., Vancouver
10 Total Units - Check Availability
U-Rent Warehouses
U-Rent Warehouses
5951 E. 18th St., Vancouver
14 Total Units - Check Availability