Contractor Village

Commercial & Industrial Park

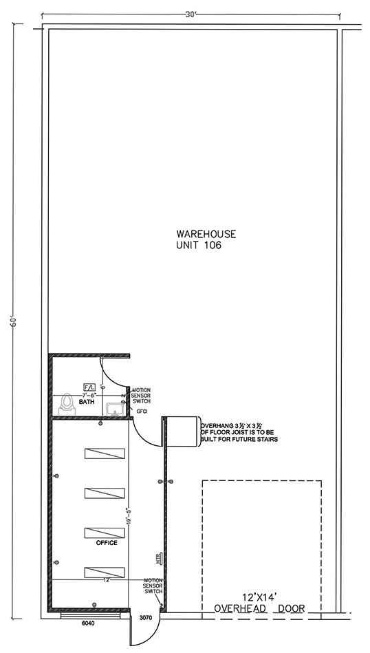
Details for Unit: #106

Unit #106:

Location: Building: A

Width: 30'

Depth: 60'

Total Size: 1,800 S.F.

Unit Will Become Available On:

This unit will be available to be leased after: 2026-01-01

Give our leasing contact a call with any questions on our warehouse unit availability at: (360) 619-2977.

Floorplan for Unit #106

Floorplan for Unit #106
Click to Enlarge Floorplan.

Rental Price

Space Dimensions Restroom Included? Office Included? Cost + NNN
30' Wide x 60' Deep No No $2,490.00 / Month + $150.00 NNN

Looking for More Information?

If you are looking for more information, a more detailed floor-plan, circuitry configurations, or combination-unit options please call our Leasing Contact to discuss your informational request at (360) 619-2977 or visit our Contact Us page.

Other Delta Management Company Warehouse Properties You May Be Interested In

Airport Industrial Warehouses
Airport Industrial Warehouses
207 E. Reserve St., Vancouver
53 Total Units - Check Availability
Contractor Depot
Contractor Depot
12308 N.E. 56th St., Vancouver
49 Total Units - Check Availability
Park Warehouses
Park Warehouses
1770 NE 65th Ave., Vancouver
10 Total Units - Check Availability
U-Rent Warehouses
U-Rent Warehouses
5951 E. 18th St., Vancouver
14 Total Units - Check Availability